Espace propriétaire
fr

Votre recherche

Nouveauté
Angoulême (16000)

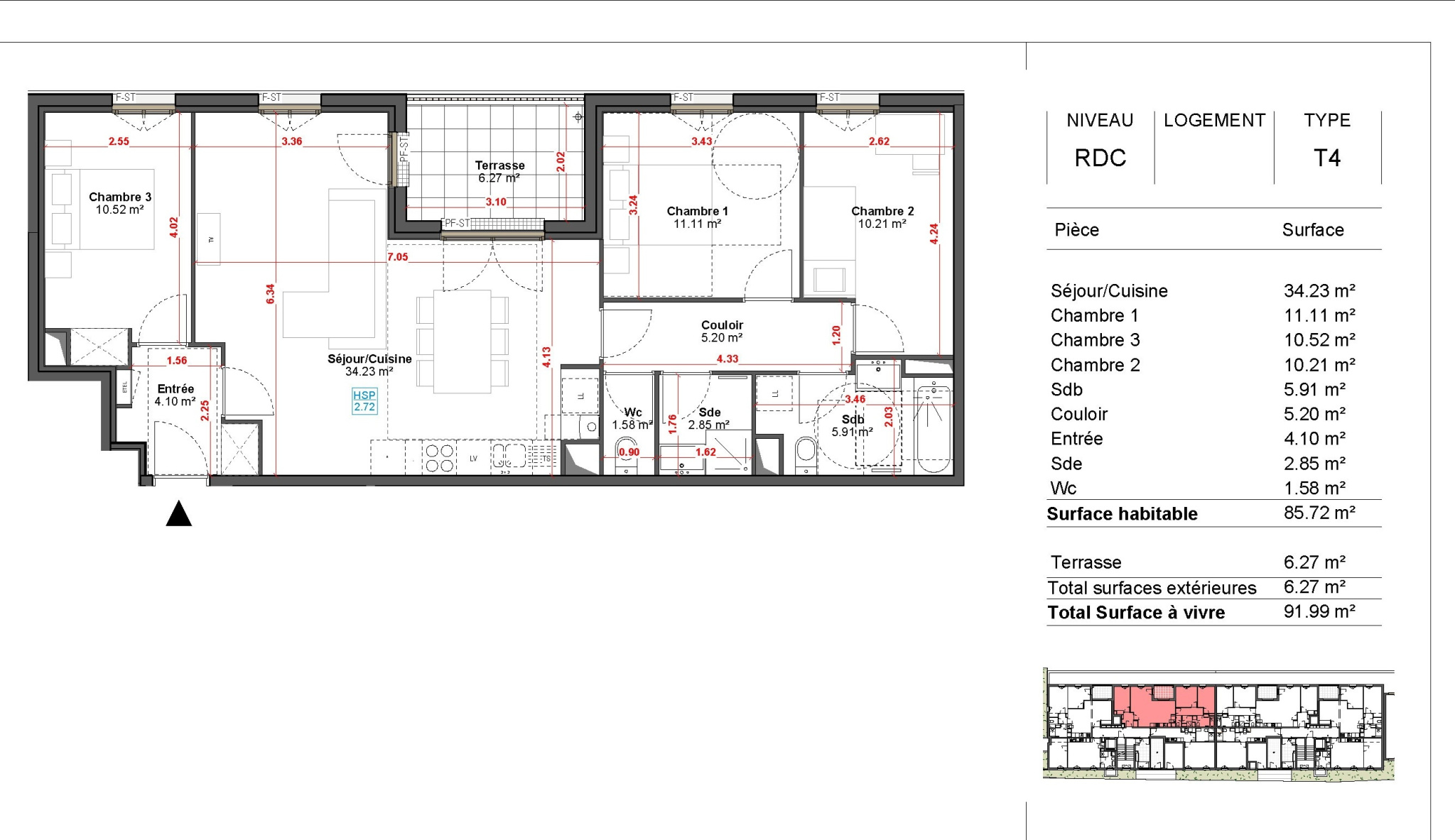
4 pièces - 85,72 m²

Appartement T4 neuf de 85,72 m² - Angoulême

266 500 €
Ref : E05
Découvrir le bien

À Angoulême, rue de Bordeaux, à proximité immédiate du centre-ville et des berges de la Charente, découvrez cet appartement T4 de 85,72 m² situé en rez-de-chaussée au sein d’une résidence neuve intégrée dans un environnement dynamique mêlant logements, commerces et bureaux.

Ce bien se compose de trois chambres, d’un séjour avec cuisine, d’une entrée, d’une salle de bain, d’une salle d’eau ainsi que de deux WC. L’agencement offre une organisation fonctionnelle, avec une séparation entre les espaces de vie et le coin nuit.

La pièce principale donne accès à une terrasse, apportant un espace extérieur agréable et facilement accessible.

Cet appartement moderne conviendra aussi bien pour une résidence principale que pour un investissement, dans un secteur recherché alliant proximité des commodités, des transports et des espaces naturels.

Les photos présentées sont non contractuelles

RE 2020 - Prix : 266 500 € (honoraires charge vendeur) - Contactez dès aujourd'hui, Madame Dominique LAVERGNE, 483 874 152 R.S.A.C. Angoulême, sur le 06 20 77 28 15 ou écrivez-lui sur dominique.lavergne@valoisimmo.fr

TRAD_ZEPHYR_Caracteristique TRAD_ZEPHYR_Valeurs
Code postal 16000
Nombre de chambre(s) 3
Nombre de pièces 4
Ascenseur OUI
Vue Charente
TRAD_ZEPHYR_Caracteristique TRAD_ZEPHYR_Valeurs
Nb de salle de bains 1
Nb de salle d'eau 1
Mode de chauffage Electrique
Type de chauffage Radiateur
Format de chauffage Individuel
Visiophone OUI
Balcon OUI
TRAD_ZEPHYR_Caracteristique TRAD_ZEPHYR_Valeurs
Copropriété NON
TRAD_ZEPHYR_Caracteristique TRAD_ZEPHYR_Valeurs
Prix de vente honoraires TTC inclus 266 500 €
Rez de chaussée
chambre

chambre

chambre

cuisine

salon/sejour

salle de bain

balcon

Salle d'eau

WC

DPE GES
Contacter pour ce bien
L'agence
Téléphone 05.45.95.13.41
Adresse
15 Boulevard Berthelot 16000 Angoulême

* Champ obligatoire

Les informations recueillies sur ce formulaire sont enregistrées dans un fichier informatisé par La Boite Immo agissant comme Sous-traitant du traitement pour la gestion de la clientèle/prospects de l'Agence / du Réseau qui reste Responsable du Traitement de vos Données personnelles. La base légale du traitement repose sur l'intérêt légitime de l'Agence / du Réseau. Elles sont conservées jusqu'à demande de suppression et sont destinées à l'Agence / au Réseau. Conformément à la loi « informatique et libertés », vous disposez des droits d’accès, de rectification, d’effacement, d’opposition, de limitation et de portabilité de vos données. Vous pouvez retirer votre consentement à tout moment en contactant directement l’Agence / Le Réseau. Consultez le site https://cnil.fr/fr pour plus d’informations sur vos droits. Si vous estimez, après avoir contacté l'Agence / le Réseau, que vos droits « Informatique et Libertés » ne sont pas respectés, vous pouvez adresser une réclamation à la CNIL. Nous vous informons de l’existence de la liste d'opposition au démarchage téléphonique « Bloctel », sur laquelle vous pouvez vous inscrire ici : https://www.bloctel.gouv.fr Dans le cadre de la protection des Données personnelles, nous vous invitons à ne pas inscrire de Données sensibles dans le champ de saisie libre.
Ce site est protégé par reCAPTCHA, les Politiques de Confidentialité et les Conditions d'Utilisation de Google s'appliquent.

Découvrir nos outils