Espace propriétaire
fr

Votre recherche

Nouveauté
Angoulême (16000)

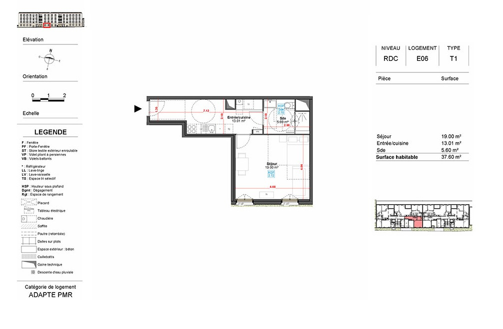
1 pièces - 37,56 m²

Appartement T1 neuf de 37,56 m² - Angoulême L'Houmeau - Emplacement Premium - Livraison fin 2027

136 500 €
Ref : E06
Découvrir le bien

Situé à Angoulême, rue de Bordeaux, à proximité immédiate du centre-ville et des berges de la Charente, cet appartement T1 de 37,56 m² en rez-de-chaussée s’inscrit dans un projet de construction moderne au cœur d’un environnement dynamique mêlant logements, commerces et bureaux.

Il se compose d’une chambre, d’un séjour lumineux, d’une cuisine, d’une salle de bain ainsi que d’un WC.

Ce bien neuf offre un cadre de vie agréable, idéal pour un premier achat ou un investissement locatif, dans un secteur recherché alliant praticité et qualité de vie. L’emplacement est privilégié, proche des commodités, des transports et des espaces naturels.

Les photos présentées sont non contractuelles.

RE 2020 - DPE fourni à la livraison - Prix :136 500 € HAI (charge vendeur) - Contactez dès aujourd'hui, Madame Dominique LAVERGNE, 483 874 152 R.S.A.C. Angoulême, sur le 06 20 77 28 15 ou écrivez-lui sur dominique.lavergne@valoisimmo.fr

Les informations sur les risques auxquels ce bien est exposé sont disponibles sur le siteGéorisques: www.georisques.gouv.fr

TRAD_ZEPHYR_Caracteristique TRAD_ZEPHYR_Valeurs
Code postal 16000
Nombre de chambre(s) 1
Nombre de pièces 1
Ascenseur OUI
Vue rue de Bordeaux
TRAD_ZEPHYR_Caracteristique TRAD_ZEPHYR_Valeurs
Nb de salle d'eau 1
Cuisine Sans
Mode de chauffage Electrique
Type de chauffage Radiateur
Format de chauffage Individuel
Nombre de parking 1
Exposition Sud
Année de construction 2027
TRAD_ZEPHYR_Caracteristique TRAD_ZEPHYR_Valeurs
Copropriété NON
TRAD_ZEPHYR_Caracteristique TRAD_ZEPHYR_Valeurs
Prix de vente honoraires TTC inclus 136 500 €
Rez de chaussée
salon/sejour

cuisine

chambre

salle de bain

WC

DPE GES
Contacter pour ce bien
L'agence
Téléphone 05.45.95.13.41
Adresse
15 Boulevard Berthelot 16000 Angoulême

* Champ obligatoire

Les informations recueillies sur ce formulaire sont enregistrées dans un fichier informatisé par La Boite Immo agissant comme Sous-traitant du traitement pour la gestion de la clientèle/prospects de l'Agence / du Réseau qui reste Responsable du Traitement de vos Données personnelles. La base légale du traitement repose sur l'intérêt légitime de l'Agence / du Réseau. Elles sont conservées jusqu'à demande de suppression et sont destinées à l'Agence / au Réseau. Conformément à la loi « informatique et libertés », vous disposez des droits d’accès, de rectification, d’effacement, d’opposition, de limitation et de portabilité de vos données. Vous pouvez retirer votre consentement à tout moment en contactant directement l’Agence / Le Réseau. Consultez le site https://cnil.fr/fr pour plus d’informations sur vos droits. Si vous estimez, après avoir contacté l'Agence / le Réseau, que vos droits « Informatique et Libertés » ne sont pas respectés, vous pouvez adresser une réclamation à la CNIL. Nous vous informons de l’existence de la liste d'opposition au démarchage téléphonique « Bloctel », sur laquelle vous pouvez vous inscrire ici : https://www.bloctel.gouv.fr Dans le cadre de la protection des Données personnelles, nous vous invitons à ne pas inscrire de Données sensibles dans le champ de saisie libre.
Ce site est protégé par reCAPTCHA, les Politiques de Confidentialité et les Conditions d'Utilisation de Google s'appliquent.

Découvrir nos outils